物件詳細
情報登録日(最終更新日):2024/11/30
《物件名》
中古住宅
物件番号
SS10076
物件所在地
さいたま市西区指扇
交通
指扇駅 徒歩22分
価格
2700万円
坪単価
50 万円
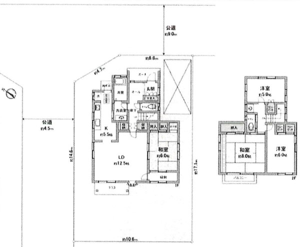
間取
4LDK
土地面積
(m
2
)
177.52 m
2
バルコニー
面積
(m
2
)
- m
2
構造
木造 2階建の1.2階
新築年月
1989.3
総戸数
1
部屋方位
南西
駐車場
あり
管理費
(円/月)
-円/月
修繕積立金
(円/月)
-円/月
引渡日
相談
小学校
栄小学校
中学校
土屋中学校
生活便利情報
第一種低層住居専用地域・都市ガス・本下水
備考
コープ徒歩5分
取引態様
仲介
●
この物件の
お問合せ・資料請求
はこちら
お問合せ
(株)アプローチ
会社所在地
〒331-0074
さいたま市西区宝来1717−5
TEL
0120-241-060
FAX
048-621-1301
免許番号
■宅建業/埼玉県知事(4) 第19667号
加入団体
■(社)全日本不動産協会会員
E-mail
info@yamatokun.com
●
メールフォームで問合せ!
→
クリック