物件詳細


情報登録日(最終更新日):2026/01/16
《物件名》 【成約】新築一戸建
物件番号 SS10103-1
物件所在地 さいたま市西区宝来
交通 指扇駅 徒歩12分 価格
-万円
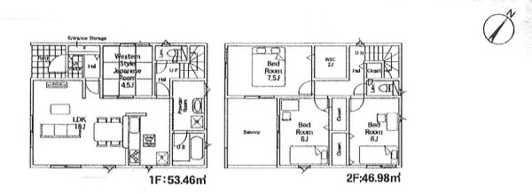
坪単価 76 万円 間取 4LDK
土地面積 (m2) 154.03 m2 バルコニー
面積
(m2)
- m2
構造 木造 2階建の1.2階 新築年月 2025.8
総戸数 3 部屋方位 南東
駐車場 あり 管理費
(円/月)
-円/月
修繕積立金 (円/月) -円/月 引渡日 相談
小学校 指扇小学校 中学校 指扇中学校
生活便利情報 市街化調整区域・LPG・本下水・システムキッチン・カウンターキッチン・シャワートイレ・シャンプードレッサー
備考 TVドアホン・ペアガラス・フラット35S利用可・新築・ローソン徒歩4分 取引態様 仲介
SS10103-1 間取

この物件のお問合せ・資料請求はこちら
お問合せ (株)アプローチ
会社所在地 〒331-0074 さいたま市西区宝来1717−5
TEL 0120-241-060 FAX 048-621-1301
免許番号 ■宅建業/埼玉県知事(4) 第19667号 加入団体 ■(社)全日本不動産協会会員
E-mail info@yamatokun.com
メールフォームで問合せ!
クリック